Commercial & Retail

Osteen Village & Osteen Pet and Feed Outlet

COMMERCIAL & RETAIL SPACES

Our commercial and retail projects are designed to bring your vision to life. Whether it’s a retail space, restaurant, or office building, we create functional, attractive spaces that support your business goals and growth.

About This Project

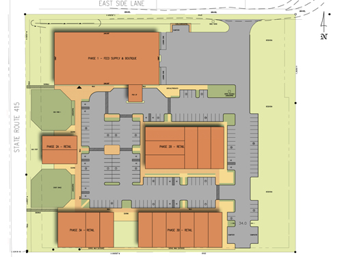
The Osteen Village and the Osteen Pet and Feed Outlet is a community-focused retail development designed to reflect the rural character of the Osteen area.

Client

Mr. Ali Rabah

Location

Osteen, FL

Project Year

2012 - 2013

Building Area

76,800 sq ft

Services

KTH Architects designed this project in 2012, and aided in construction documents in 2013.

Project Description

The Osteen Village was a 76,800 square foot retail development, carefully designed to capture the rural charm of the Osteen community. The centerpiece is a 28,800 square foot feed store, called Osteen Pet and Feed Outlet, with its scale softened by vintage wall murals and green walls, which not only adds aesthetic appeal but also reduces the building’s heat load. The development embraces a rural lifestyle with large agricultural animal topiary sculptures and includes multiple community amenities, such as a dog park, a versatile event space perfect for hosting a Farmer’s Market, a children’s splash park, and a walkable retail environment that encourages community interaction and supports local businesses.

Interesting Facts

Additional Commercial & Retail Projects

6990 Lk. Ellenor Drive Orlando

Murrays Honda

Treasure Lake Lakeside Restaurant

Fox Township CNB Bank

Developac Office Building

Bradford CNB Bank

Meadow Lane Multi-Tenant Building

Helmbold & Stewart Insurance Office

Curwensville State Bank

Bank of Erie

And more!

Ready to Get Started?

Contact us below!

GET IN TOUCH

Fill out your information in the form, or feel free to send us an email or give us a ring!

KTH Architects of DuBois, PA

KTH Architects of Orlando, FL